◆敷地面積約150㎡以上を擁する大型分譲地
◆全13区画販売開始
◆庭付き+駐車場2台以上可
※マウスを乗せると画像が切り替わります。
物件の特徴
主な設備
公営水道
下水道
都市ガス
食器洗浄乾燥機
食品庫
コンロ三口
グリル
カウンターキッチン
システムキッチン
オートバス
浴室暖房
浴室乾燥機
浴室に窓
トイレ
トイレ2箇所
温水洗浄便座
室内洗濯機置場
洗髪洗面化粧台
洗面所独立
リビング階段
モニタ付インターホン
セキュリティシステム
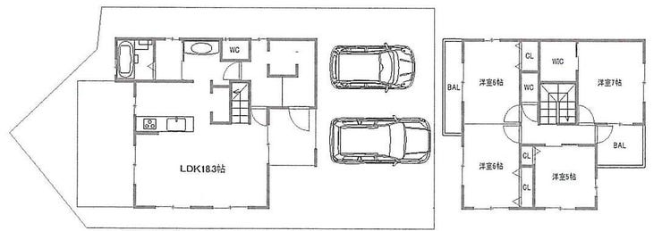
LDK18畳以上
3面採光
全室2面採光
フローリング
全室フローリング
クローゼット3箇所
ウォークインクローゼット
全居室収納
庭
主な特徴
2沿線利用可
前道6m以上
緑豊かな住宅地
閑静な住宅街
通風良好
陽当り良好
2階建
開発分譲地内
即入居可
☆太陽光発電とエネファーム(発電)が装備された次世代型W発電住宅
☆防犯システム(アイルス)を標準装備
☆憧れの庭付き一戸建て
☆駐車場2台以上可、LDK、お部屋すべてがゆとりある間取り
・玄関にはシューズインクローク、全部屋収納完備
・水回り動線が固まっており家事も楽々
・リビング階段につき家族の出入りが分かりやすい
物件概要
| 価格 | 3,780万円 | 間取り | 4LDK |
|---|---|---|---|
| 物件種別 | 新築一戸建て | ||
| 所在地 | 大阪府東大阪市善根寺町1丁目 | ||
| アクセス | 近鉄難波・奈良線『石切』 徒歩30分 (約2400m) 近鉄けいはんな線『新石切』 徒歩40分 (約3200m) 四条畷線40001系統『孔舎衙小学校前』 徒歩13分 (約1040m) |
||
| 建物面積 | 公107.02㎡ | 駐車場 | あり 普通:2台 |
| 築年月 | 2024年(令和6年)12月築 | 建築確認 | |
| 建物構造 | 木造 2階建 | 工法 | |
| 主要採光 | 東向 | バルコニー | |
| 保証・評価 | |||
| 土地面積 | 公161.4㎡(48.82坪) | 接道 | 東側幅 約6.7m 間口 約10.00m |
| 私道 | セットバック | ||
| 地目 | 宅地 | 地勢 | 傾斜地 |
| 権利 | 所有権 |
||
| 都市計画 | 市街化区域 |
用途地域 | 1種低層 |
| 建ぺい/容積率 | 60% / 150% | 土地国土法 | |
| 許可番号 | 建築基準法 | ||
| 法令制限 | 準防火地域 | ||
| 小学区 | 孔舎衙東小学校 徒歩9分 (約700m) | 中学区 | 孔舎衙中学校 徒歩6分 (約450m) |
| 現況 | 空 | 引渡 | 即 |
| その他費用 | |||
| 周辺環境 | 東大阪市立孔舎衙東小学校 徒歩9分 (約650m) 東大阪市立孔舎衙中学校 徒歩144分 (約11470m) セブンイレブン 東大阪善根寺町3丁目店 徒歩17分 (約1290m) 万代 善根寺店 徒歩14分 (約1060m) ココカラファイン 日下店 徒歩18分 (約1380m) 阪奈病院 徒歩30分 (約2380m) 東大阪日下郵便局 徒歩15分 (約1190m) JA大阪中河内 孔舎衙支店 徒歩13分 (約1030m) ビオスキッズ山の手保育園 徒歩144分 (約11470m) 善根寺東第2公園 徒歩144分 (約11470m) |
||
| 備考 | ・外構費用別途100万円(税込) ・表題表記・司法書士:売主指定 |
||
| 物件番号 | 4649073 | 取引態様 | 媒介 |
値下げ物件
















弊社は不動産売買専門の仲介会社とし、全国700店舗展開中のハウスドゥ近鉄八尾北でございます。
購入・売却に関する様々なご相談承っております。
弊社は他社様が掲載されている物件でもご紹介可能です。お気軽にご相談くださいませ。